河南博能机电设备有限公司|桥式起重机|门式起重机|单梁起重机|起重机源头厂家主要生产架桥机JQ、门机、双主梁MG、单梁桥式起重机等
服务热线:
151-3738-9090

河南博能机电设备有限公司|桥式起重机|门式起重机|单梁起重机|起重机源头厂家

全国咨询热线

151-3738-9090
MH型3~16t电动葫芦门式起重机(箱型式)

MH型3~16t电动葫芦门式起重机(箱型式)

咨询热线:15137389090

  一、 产品概述

  1、 MH型电动葫芦门式起重机与CD1、MD1等型号的电动葫芦配套使用,是一种有轨运行的中小型起重机。

  2、 适用起重量3-16吨,适用跨度12-30米,工作环境-20℃- +40℃内。

  3、 本产品为一般用途起重机,多用于露天场所及仓库的装卸或抓取物料。

  4、 本产品有地面操纵和室内操纵两种形式。

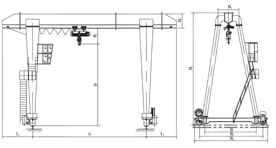
  二、产品简图与技术规格(10t)


设备展示

Equipment display
联系我们Contact us

电话:杨经理 15137389090

400电话:400-619-6991

电话:151-3738-9090

邮箱:1203414179@qq.com

地址:河南省长垣市山海大道18号

版权所有 河南博能机电设备有限公司|桥式起重机|门式起重机|单梁起重机|起重机源头厂家 备案号:豫ICP备2021015915号-1  豫公网安备 41072802000463号